Loading...
header-logo2.png

Description

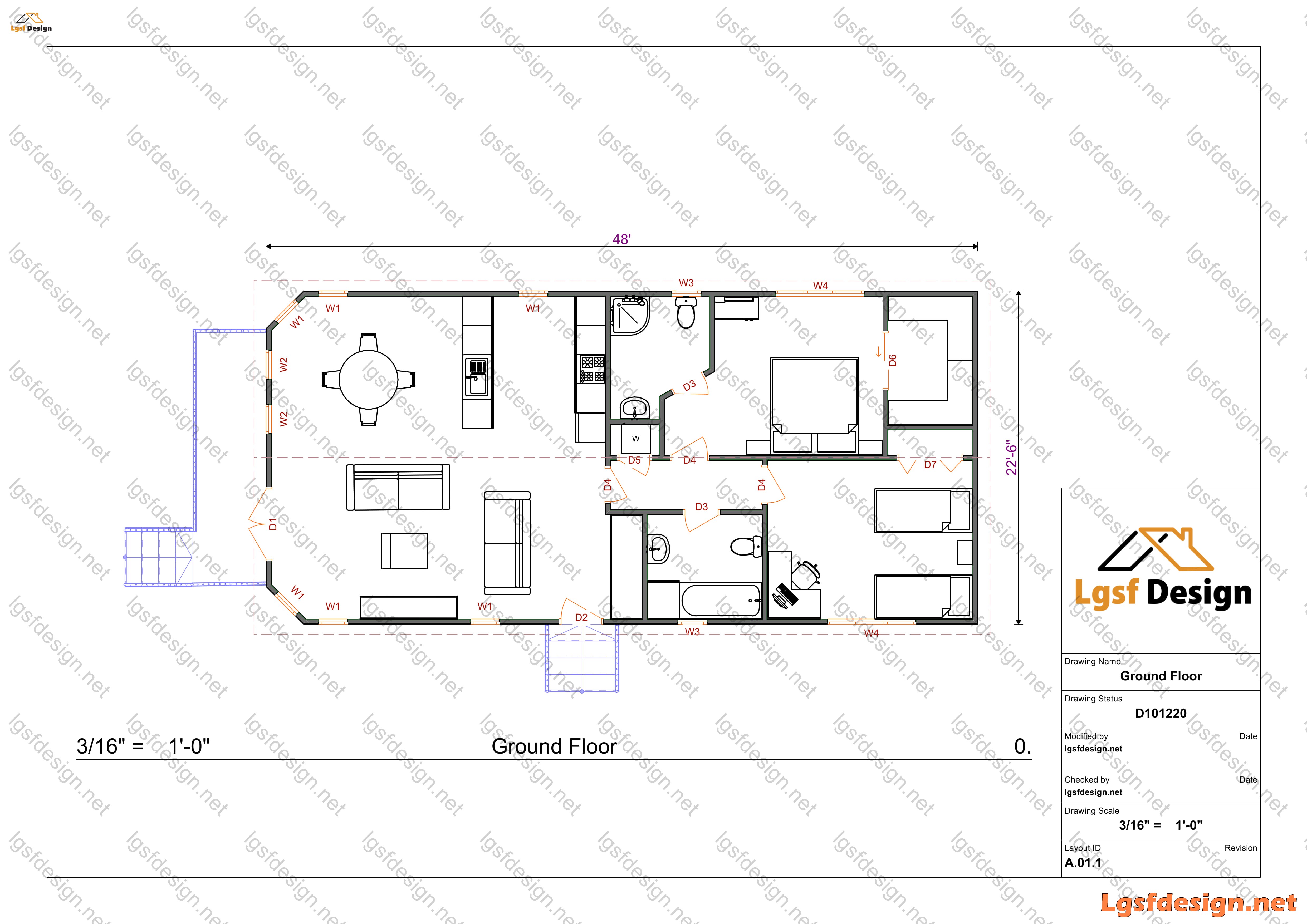
This charming home offers a thoughtfully designed layout of approximately 1080 ft², perfectly balancing comfort and functionality. As you enter, you're greeted by an open-concept living area that seamlessly combines the living room, dining space, and kitchen. The spacious living room provides ample room for relaxation and entertainment, while the adjacent dining area offers a perfect spot for family meals or hosting friends.

The well-appointed kitchen features modern appliances and plenty of counter space, making meal preparation a breeze. A convenient island provides additional workspace and casual seating, ideal for quick breakfasts or casual conversations.

The home boasts three comfortable bedrooms, including a master suite with an ensuite bathroom for added privacy. 

For your convenience, a separate laundry area is tucked away, keeping your living spaces clutter-free. The home's layout also includes ample storage throughout, ensuring everything has its place.

Large windows throughout allow natural light to flood the interior, creating a bright and inviting atmosphere. The floor plan's efficient design maximizes every square foot, eliminating wasted space and enhancing the overall living experience.

Outside, you'll find a  porch area, perfect for enjoying your morning coffee or evening relaxation. The home's compact footprint of 48' x 22.5' makes it ideal for various lot sizes while still providing all the amenities of a larger home.

This thoughtfully designed residence offers the perfect blend of comfort, style, and practicality, making it an excellent choice for those seeking a modern, efficient living space.

Packages Price

Foundation $ 110.0
Architectural Drawings $ 120.0
Complete BOQ $ 80.0
Drawings, calculations & CNC files $ 130.0
Full Package $ 440.0

Key Specs

  • Title :

  • Price :

  • Area :

  • Bedroom :

  • D101220

  • $ 440

  • 101 m2

  • 2

  • Bathroom :

  • Garage :

  • Floor :

  • Hot Rolled Steel :

  • 2

  • 0

  • 1

  • No

Additional Details

  • Structure Weight :

  • Longest Memeber Length :

  • Steels :

  • 3200 kg

  • 7.20 m

  • 362S162 , 600S162

Load Conditions

  • Designing Code :

  • Characteristic Value of Snow Load :

  • Fundamental Basic Wind Velocity :

  • Basic Velocity Pressure :

  • Reference Value of Peak Ground Acceleration :

  • IBC 2021

  • 0.50 kN/m2

  • 45.00 m/s

  • 1.00 kN/m2

  • 0.20 m/s2

Floor plans

floor_plan.png

Floor Plan

Write a Review

  • Your Rating & Review

Similar Plans