Loading...
header-logo2.png

Packages Price

Foundation $ 120.0
Architectural Drawings $ 130.0
Complete BOQ $ 80.0
Drawings, calculations & CNC files $ 140.0
Full Package $ 470.0

Key Specs

  • Title :

  • Price :

  • Area :

  • Bedroom :

  • D111220

  • $ 470

  • 111 m2

  • 2

  • Bathroom :

  • Garage :

  • Floor :

  • Hot Rolled Steel :

  • 2

  • 0

  • 1

  • No

Additional Details

  • Structure Weight :

  • Steels :

  • 3330 kg

  • 89S41G350-0.75 mm , 89S41G350-0.95 mm

Load Conditions

  • Designing Code :

  • Characteristic Value of Snow Load :

  • Fundamental Basic Wind Velocity :

  • Basic Velocity Pressure :

  • Reference Value of Peak Ground Acceleration :

  • IBC 2021

  • 0.50 kN/m2

  • 40.00 m/s

  • 1.00 kN/m2

  • 0.20 m/s2

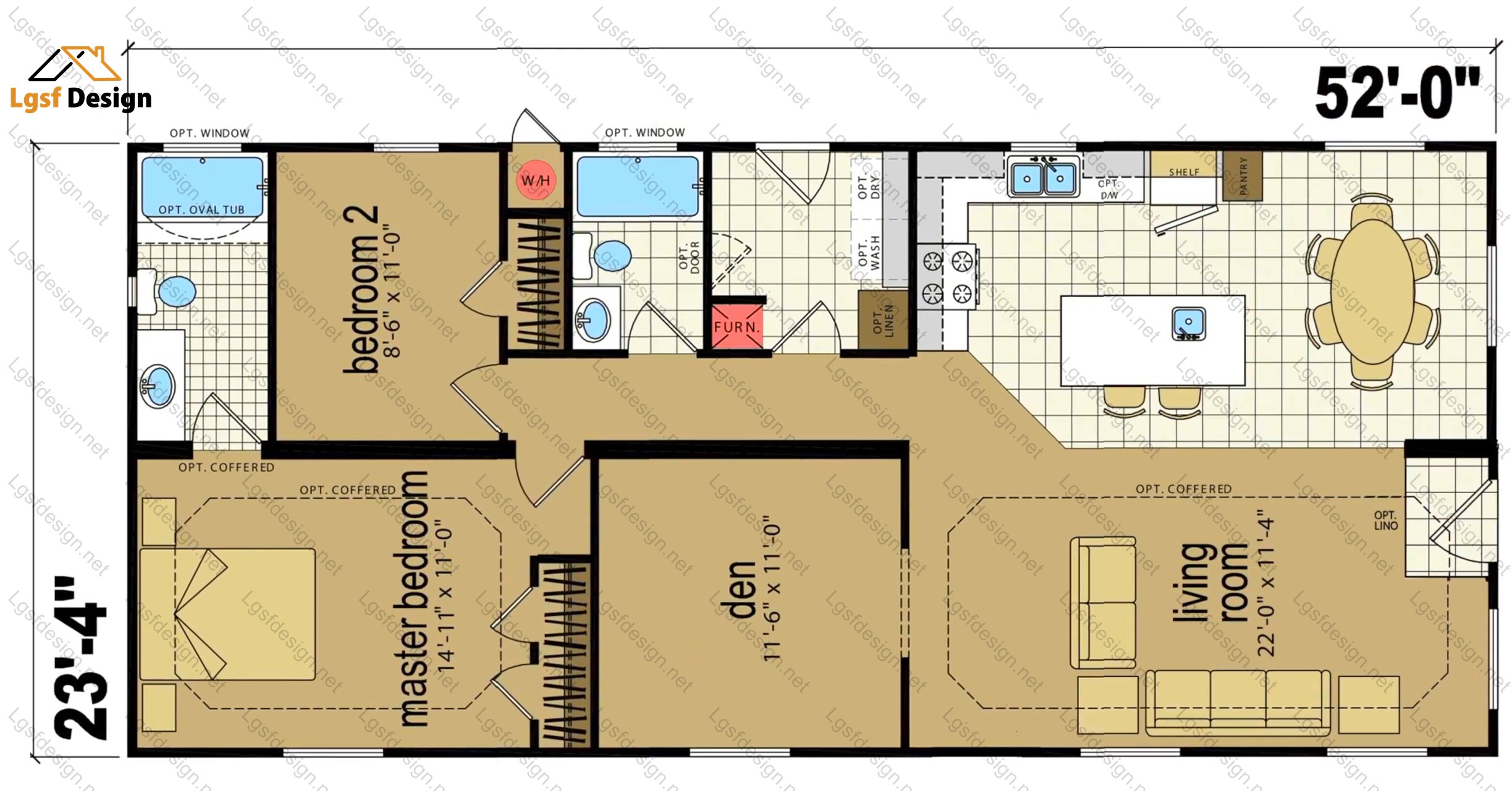
Floor plans

floor_plan.png

Floor Plan

Write a Review

  • Your Rating & Review

Similar Plans