Loading...
header-logo2.png

Description

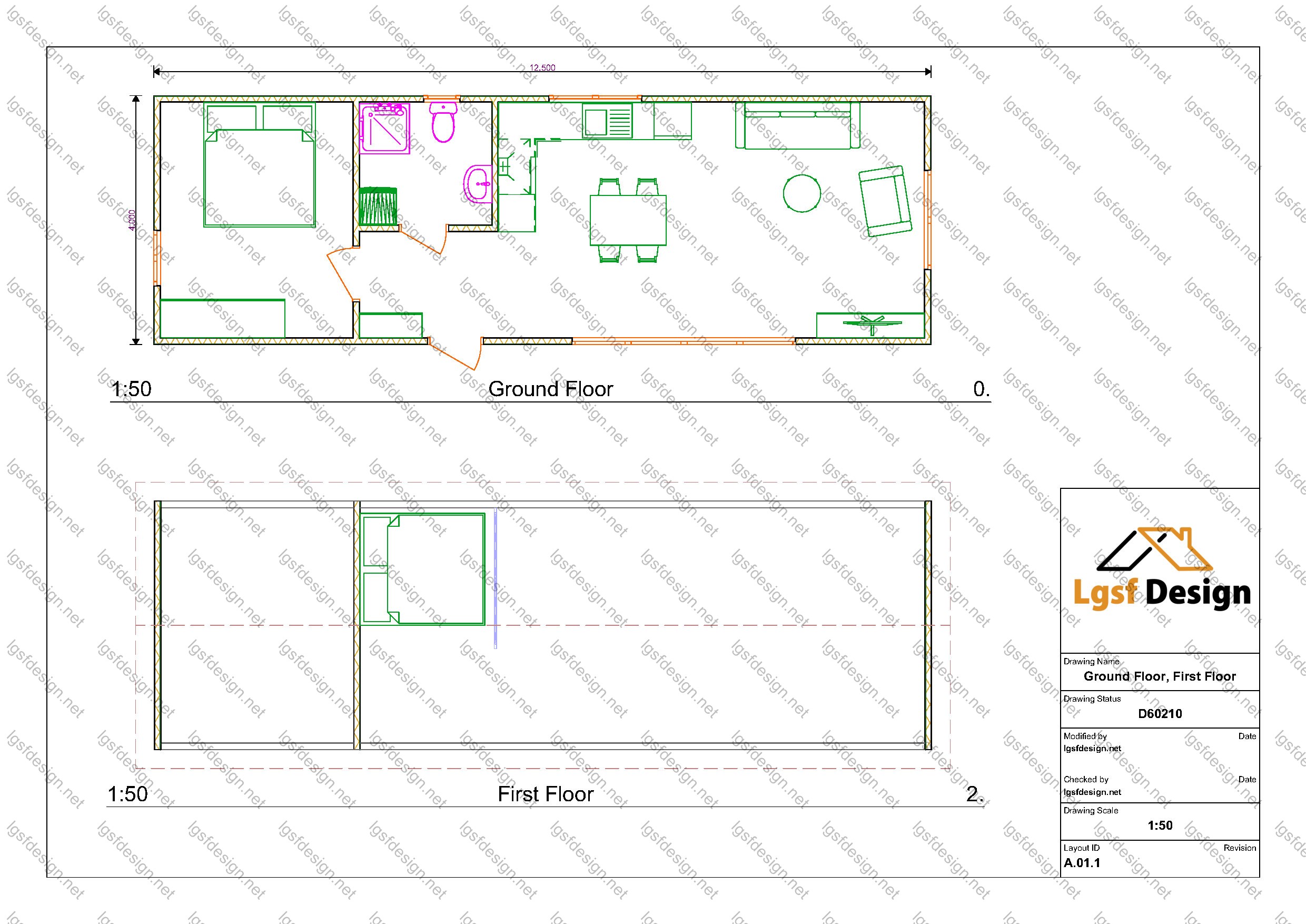
This compact and simple house provides a bright and open great room. The vaulted ceilings and large south glass doors allow for a generous connection between indoors and out, making the home feel much larger than it is. This floor plan offers 2 Bedroom suites. At 60 Sqm it is right sized for compact living, a vacation home, or a rental property. The rectangular floor plan, slab-on-grade foundation, and extruded gable shape simplify the construction process. 

Packages Price

Foundation $ 60.0
Architectural Drawings $ 70.0
Complete BOQ $ 80.0
Drawings, calculations & CNC files $ 80.0
Full Package $ 290.0

Key Specs

  • Title :

  • Price :

  • Area :

  • Bedroom :

  • D60210

  • $ 290

  • 60 m2

  • 2

  • Bathroom :

  • Garage :

  • Floor :

  • Hot Rolled Steel :

  • 1

  • 0

  • 1

  • No

Additional Details

  • Structure Weight :

  • Steels :

  • 1647 kg

  • 89S41G350-0.75 mm , 89S41G350-0.95 mm

Load Conditions

  • Designing Code :

  • Characteristic Value of Snow Load :

  • Fundamental Basic Wind Velocity :

  • Basic Velocity Pressure :

  • Reference Value of Peak Ground Acceleration :

  • IBC 2021

  • 0.50 kN/m2

  • 40.00 m/s

  • 1.00 kN/m2

  • 0.20 m/s2

Floor plans

floor_plan.png

Floor Plan

Write a Review

  • Your Rating & Review

Similar Plans